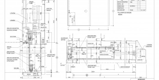
ZR400 Completed STC-35 Single Sliding Door with 362 x 2pcs Door Drawings ZR400 Completed STC-35 Single Sliding Door with 362 x 2pcs Door Drawings zeroasiapacific2021-04-30T03:24:50+09:00 PDF Learn More
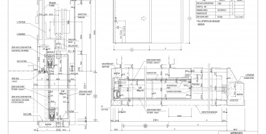
ZR400 STC-35 Steel Acoustic Single Sliding Door Door Drawings ZR400 STC-35 Steel Acoustic Single Sliding Door Door Drawings zeroasiapacific2021-04-30T03:25:06+09:00 PDF CAD Learn More
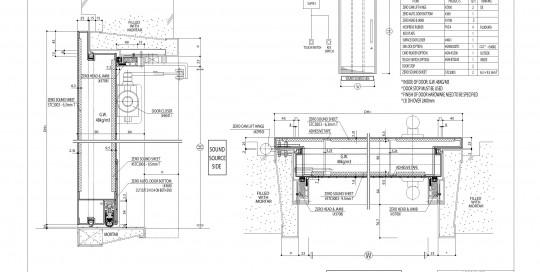
ZRFD50 Completed STC-50 Door Drawings ZRFD50 Completed STC-50 Door Drawings zeroasiapacific2021-04-30T03:25:20+09:00 PDF CAD Learn More
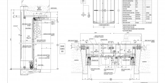
ZRFDW50 Completed STC-50 Door Drawings ZRFDW50 Completed STC-50 Door Drawings zeroasiapacific2021-04-30T03:25:33+09:00 PDF CAD Learn More